



New rentals in Lind - listed as double houses
Monthly rent
10.600 kr.
Tavlund Krat 25
7400 Herning
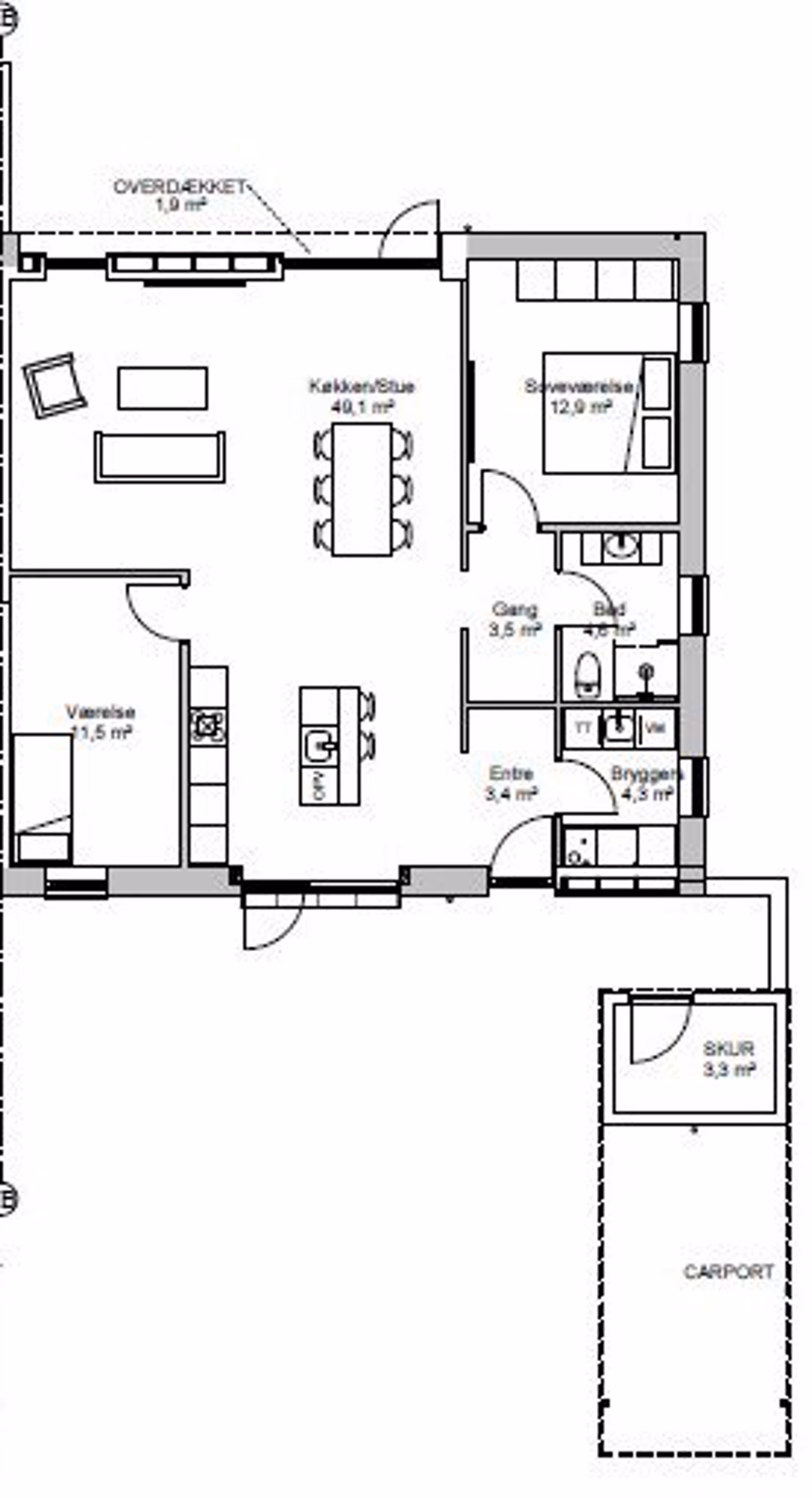
106 m² 3 rooms 0 days listed
Description
The title and description are machine-translated and may not be accurate. Please verify details with the landlord.
At the end of 2026, new rentals are ready in Lind. The houses are all 106 m ² and are constructed as a double house. The houses are decorated with entre and brewers, living room and kitchen in one, 2 bedrooms and a bathroom. There is the possibility (for extra cost) to establish an extra room in the living room. Good and rich materials. Each house includes garden, terrace and carport with shed. Call New home Herning for more info - 70254050.
Similar rentals nearby







